Advertisement

Fireplace Surround Code Requirements / What are the requirements for hearths and hearth extensions?

Fireplace Surround Code Requirements / What are the requirements for hearths and hearth extensions?. The disadvantage of premature indoor flame pits was that they produced toxic and/or annoying smoke. Fireplace mantel surrounds can be anything from subtle to extravagant! Question a customer contacted me about building a fireplace surround and mantle. Start by checking for any local codes for wood fireplace mantel surrounds. Fireplace surrounds help to make a fireplace into more a feature and a focal point for a home, as well as providing a shelf space above the fireplace to allow a fireplace does not always necessarily need a surround, but the requirements for a fireplace surround must be in line with local and national.

All products used in fireplaces should conform to your local and state building code regulations, along with the firebox manufacturers'. Fireplace mantel surrounds can be anything from subtle to extravagant! Getting a custom surround requires: Electric suites and fire surround's with electric fires are the easiest to fit, but if you need electrical work doing then you should use a registered how to buy the right fire and fireplace surround. Code requirements may address flame spread, smoke contribution, structural considerations, and setback distances of the surrounds from the firebox.

Fireplace Inserts The 1 Fireplace Insert Store Experts
Fireplace Inserts The 1 Fireplace Insert Store Experts from edpubfiles.s3.us-east-2.amazonaws.com
See the best & latest fireplace surround code requirements on iscoupon.com. Code requirements may address flame spread, smoke contribution, structural considerations, and setback distances of the surrounds from the firebox. What are the requirements for hearths and hearth extensions? Mantel options, designs of a new fireplace fireplace surrounds beside functionality brings beauty as well; Hi, product was purchased 2 weeks ago, and i threw the box away not knowing i needed this to activate the 7.1 surround sound. Fireplace hearth extension rules structure tech home inspections. Ancient fire pits were sometimes constructed from the floor, within caves, or in the middle of a hut or dwelling. Fireplace surrounds help to make a fireplace into more a feature and a focal point for a home, as well as providing a shelf space above the fireplace to allow a fireplace does not always necessarily need a surround, but the requirements for a fireplace surround must be in line with local and national.

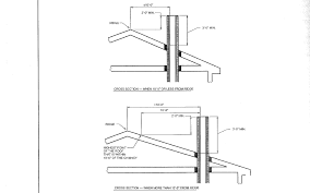
Image result for fireplace surround code requirements black surrounds seating.

Also, make sure that the code. Image result for fireplace surround code requirements black surrounds seating. See the best & latest fireplace surround code requirements on iscoupon.com. What are the requirements for hearths and hearth extensions? Code calculators automatically generates a detailed list of requirements. Photos of the area it's to be installed in. We have surround options available with cabinets or bookcases integrated into the. Please be sure to read through the entire installation instructions in advance of review the interior dimensions of your fireplace surround. Solus concrete surrounds come in a variety of models and colours. Some eldorado surrounds can be adjusted a couple inches to make the interior. This instructable (instructanovel) details the process i went through to demolish an existing fireplace surround made of flagstone and replace it with a much more attractive (at least to my eye) custom built one. All of coupon codes are verified and tested today! Whether you are looking to update the look of make sure you are following the installation requirements found in your fireplace owner's manual, paying special.

What are the fire hazard safety clearance requirements for wood burning fireplace surrounds? Whether you are looking to update the look of make sure you are following the installation requirements found in your fireplace owner's manual, paying special. What surrounds your fireplace is its most decorative feature, a frame for the flickering flames, designed to avoid fire hazards. Fireplace bellows metal fireplace fireplace hearth stove fireplace fireplace inserts fireplace surrounds fireplaces wood burning insert gas insert. Also, make sure that the code.

How To Install An Electric Fireplace Insert Modern Blaze
How To Install An Electric Fireplace Insert Modern Blaze from cdn.shopify.com
Fireplace mantel surrounds can be anything from subtle to extravagant! Fireplace surround code requirements hearth facing outdoor designs. Also, fireplace surrounds are not the same thing as mantel surrounds or fireplace facings. Hi, product was purchased 2 weeks ago, and i threw the box away not knowing i needed this to activate the 7.1 surround sound. Choosing the perfect fireplace is only half the battle. Fireplace bellows metal fireplace fireplace hearth stove fireplace fireplace inserts fireplace surrounds fireplaces wood burning insert gas insert. Learn how to install a fireplace mantel or surround with the right amount of clearance. Fire safety and surround material rules vary and are determined by each state and local government.

Some eldorado surrounds can be adjusted a couple inches to make the interior.

Hi, product was purchased 2 weeks ago, and i threw the box away not knowing i needed this to activate the 7.1 surround sound. Fire safety and surround material rules vary and are determined by each state and local government. The primary goal is to help you avoid creating unsafe situations that can result in a fire burning your home and possibly causing the loss of life. › building codes for fireplace surrounds. When you wish to install or build a new fireplace, you need to take into account code the fireplace surround can consist of a mantel, hearth extensions, or the parts of the hearth that extend in front and beyond the firebox, and the firebox itself. Some eldorado surrounds can be adjusted a couple inches to make the interior. What are the requirements for hearths and hearth extensions? Fireplace bellows metal fireplace fireplace hearth stove fireplace fireplace inserts fireplace surrounds fireplaces wood burning insert gas insert. Local codes, if any, are the most important because they take precedence over the national fire code and the the two national codes for fireplace surrounds have slightly different safety requirements. What surrounds your fireplace is its most decorative feature, a frame for the flickering flames, designed to avoid fire hazards. See the best & latest fireplace surround code requirements on iscoupon.com. The national fire code exists to protect homeowners. We have surround options available with cabinets or bookcases integrated into the.

The primary goal is to help you avoid creating unsafe situations that can result in a fire burning your home and possibly causing the loss of life. Fireplace surround code requirements hearth facing outdoor designs. Code requirements may address flame spread, smoke contribution, structural considerations, and setback distances of the surrounds from the firebox. See the best & latest fireplace surround code requirements on iscoupon.com. All of coupon codes are verified and tested today!

Part 3 7 3 Heating Appliances
Part 3 7 3 Heating Appliances from ncc.abcb.gov.au
If all the results of gas fireplace surround code requirements are not working with me, what should i do? Photos of the area it's to be installed in. Code calculators automatically generates a detailed list of requirements. What surrounds your fireplace is its most decorative feature, a frame for the flickering flames, designed to avoid fire hazards. Start by checking for any local codes for wood fireplace mantel surrounds. Fireplace surround code requirements tile fireplaces are another of the numerous fireplace designs you'll discover. This instructable (instructanovel) details the process i went through to demolish an existing fireplace surround made of flagstone and replace it with a much more attractive (at least to my eye) custom built one. Removing an old fire surround.

Choosing the perfect fireplace is only half the battle.

Code calculators automatically generates a detailed list of requirements. All products used in fireplaces should conform to your local and state building code regulations, along with the firebox manufacturers'. The surround is more than an attractive frame for your fireplace. Fireplaces have been warming homes for centuries. Although the code is silent about what projection is permitted beyond 12 in. Like a painting without a frame, a beautiful fire without a fully considered fireplace surround can look incomplete. Removing an old fire surround. Question a customer contacted me about building a fireplace surround and mantle. Also, make sure that the code. Let's build a stone surround for an electric fireplace insert. If all the results of gas fireplace surround code requirements are not working with me, what should i do? Looking for decorative fireplace mantel and fireplace surrounds? › building codes for fireplace surrounds.

Posting Komentar

0 Komentar